Фильтры
Задать вопрос
Обращение в АБД
Позвонить
Написать в чат
Акции
Актуальное
Резиденция МИФЫ
Дом на Исхаки
ЖК Мой Ритм
ЖК Новый свет
ЖК Дома у сада
ЖК Светлая долина
Любимые герои Ак Барс Дома
Коммерческая недвижимость
Жизнь наших ЖК
Умный дом
Карьера
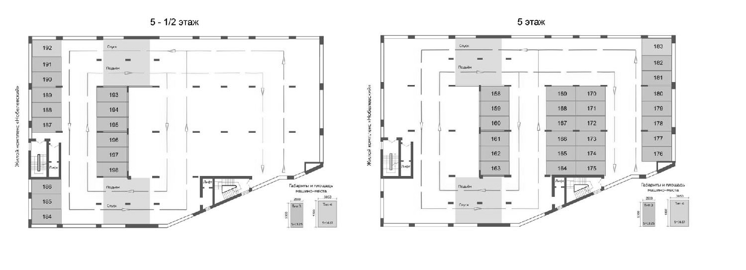
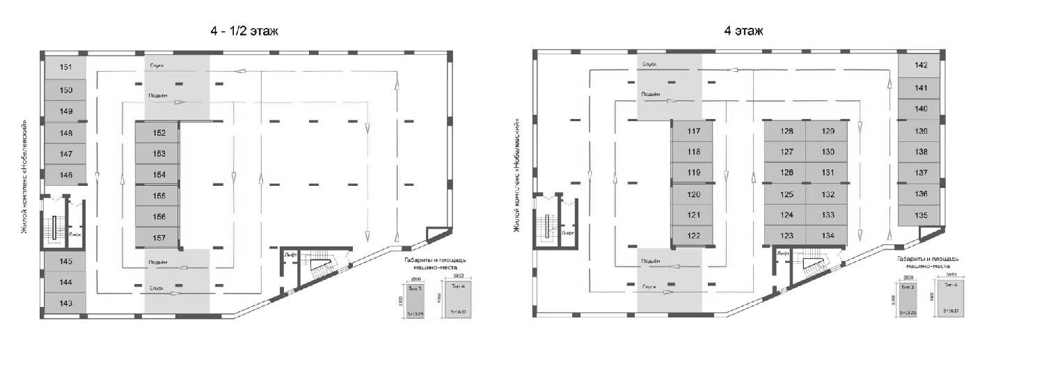
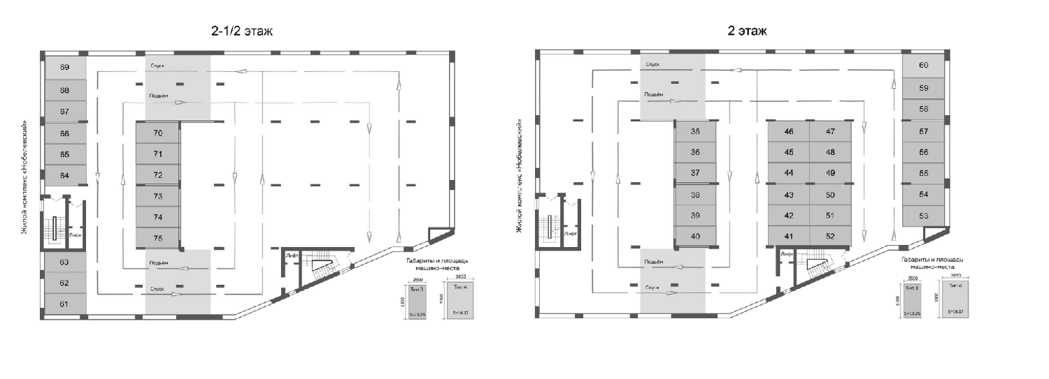
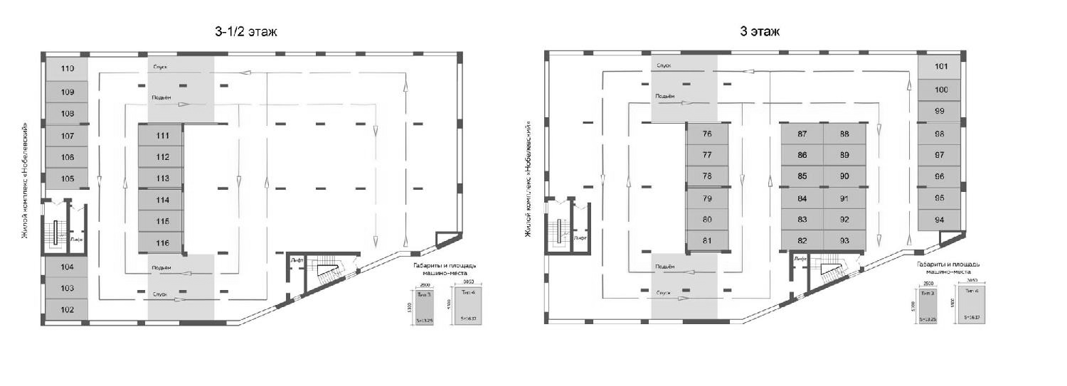
Главная Парковки

Парковки — Страница 3

ЖК Мой Ритм: Повышение цен на парковочные места — успевайте купить выгодно!

+7 (___) ___-__-__

Имя

Параметры поиска

Проект
Нобелевский
Номер дома
Все
Стоимость
Площадь
Все фильтры
79 парковочных мест
Сбросить все фильтры
Применненные фильтры
Нобелевский
Забронировано
Свободно
Занято
2
3
4
5
6
-
+
Сначала дешевле
+7 (843) 295-77-77 Ак Барс Дом проспект Победы 151а <br> г. Казань, 420025