Задать вопрос
Обращение в АБД
Позвонить
Написать в чат

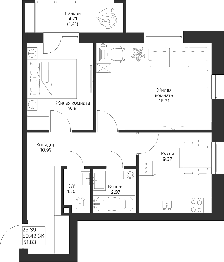
2-к квартира 51.83 м²

Дома у сада / Габдуллы Тукая ПК 1-1, кв.№ 26
Налоговый вычет:
9 588 550 руб.
-520 000 ₽
Площадь:
51.83 м²
Срок сдачи:
IV квартал 2028 г.
Этаж:
3/18
Корпус:
ПК 1-1
Проконсультироваться
Забронировать
Выберите срок бронирования
Стоимость услуги включает НДС
Продолжить
План
3D
Этаж
Мопы
Архитектура
Благоустройство
Ген.план
Расчет ипотеки
Ипотека
Рассрочка
Типы ипотечных программ
Основные параметры
Выберите банк
Все банки
Все банки
Сбербанк
ВТБ
Ак Барс Банк
Дом РФ
Ставка
Первоначальный взнос
10%
15%
20%
25%
30%
50%
Срок кредита
5
10
15
20
25
30
Отправить заявку
Персональные условия рассрочки
Выберите персональные условия
Продолжить
Расчет ипотеки
Ипотека
Рассрочка
Расчеты
Условия покупки
Предложений от банков нет!
К сожалению, предложений от банков нет. Попробуйте указать другие параметры ипотеки
Стоимость в рассрочку
10 547 405 ₽
Первый взнос
1 054 741 ₽
Ежемесячный платеж
50 000 ₽
Срок рассрочки
26 месяцев
1-й Промежуточный платеж
527 371 ₽
Дата промежуточного платежа
27.12.2026
2-й Промежуточный платеж
527 371 ₽
Дата промежуточного платежа
27.12.2027
Последний платеж
7 137 924 ₽
Дата последнего платежа
30.06.2028
Стоимость в рассрочку
10 067 978 ₽
Первый взнос
2 013 596 ₽
Ежемесячный платеж
50 000 ₽
Срок рассрочки
26 месяцев
Последний платеж
6 754 382 ₽
Дата последнего платежа
30.06.2028
Стоимость в рассрочку
9 588 550 ₽
Первый взнос
2 876 565 ₽
Ежемесячный платеж
50 000 ₽
Срок рассрочки
26 месяцев
Последний платеж
5 411 985 ₽
Дата последнего платежа
30.06.2028
Стоимость в рассрочку
9 588 550 ₽
Первый взнос
4 794 275 ₽
Последний платеж
4 794 275 ₽
Дата последнего платежа
30.06.2028
Приведенные расчеты стоимости квартиры и параметров ипотеки носят предварительный характер. Окончательный расчет суммы кредита и размер ежемесячного платежа производятся банком после предоставления полного комплекта документов и проведения оценки платежеспособности клиента.
Приведенные расчеты стоимости квартиры и параметров рассрочки носят предварительный характер. Окончательные условия рассрочки и размер ежемесячного платежа будут рассчитаны на консультации сотрудником отдела продаж.
Инвестиционная привлекательность объекта
Покупка в ипотеку и перепродажа
Покупка в ипотеку, сдача в аренду и перепродажа
Накопительная доходность
Накопительная доходность
Покупка в ипотеку и перепродажа
Банковский вклад
Доходность рассчитана на основе информации о сданных домах и носит ориентировочный характер
Рассчитать доходность
Похожие квартиры
Визуализация и планировка, в том числе в части площади и размера стен жилого помещения, являются проектными и могут быть изменены в ходе строительства объекта. Цена квартиры зависит от выбранной программы и акции, актуальные цены можно уточнить у менеджеров и на момент заключения договора.
Закрыть
ул. Рябиновая ул. Габдуллы Тукая Школа Детский сад ПК 3-1 ПК 3-2 ПК 3-3 ПК 3-4 ПК 2-1 ПК 1-1 ПК 2-2 ПК 1-3 ПК 4-1 ПК 4-2 Дорожная Детский сад г. Казань 16К-1917 16К-1917 Аэропорт с. Усады с. Столбище
+7 (843) 295-77-77 Ак Барс Дом проспект Победы 151а <br> г. Казань, 420025