Задать вопрос
Обращение в АБД
Позвонить
Написать в чат

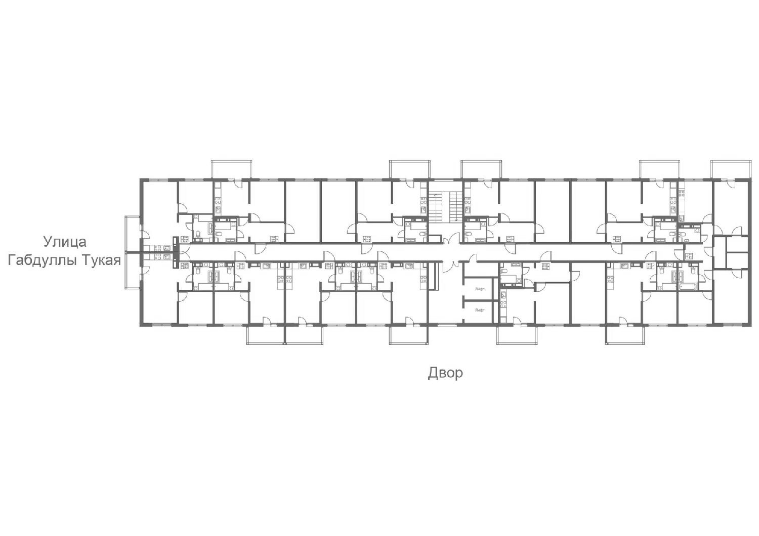
3-к квартира 77.7 м²

Дома у сада / Габдуллы Тукая 3, кв.№ 94
Налоговый вычет:
14 918 400 руб.
-520 000 ₽
Площадь:
77.70 м²
Срок сдачи:
Дом сдан
Этаж:
9/10
Корпус:
ПК 2-1
Проконсультироваться
План
3D
Этаж
Мопы
Архитектура
Благоустройство
Ген.план
Расчет ипотеки
Ипотека
Рассрочка
Типы ипотечных программ
Основные параметры
Выберите банк
Все банки
Все банки
Сбербанк
ВТБ
Ак Барс Банк
Дом РФ
Альфабанк
Ставка
Первоначальный взнос
10%
15%
20%
25%
30%
50%
Срок кредита
5
10
15
20
25
30
Расчет ипотеки
Ипотека
Рассрочка
Расчеты
Условия покупки
Предложений от банков нет!
К сожалению, предложений от банков нет. Попробуйте указать другие параметры ипотеки
Эта квартира продаётся без рассрочки, предложим вам другие интересные варианты?
Другие квартиры
Приведенные расчеты стоимости квартиры и параметров ипотеки носят предварительный характер. Окончательный расчет суммы кредита и размер ежемесячного платежа производятся банком после предоставления полного комплекта документов и проведения оценки платежеспособности клиента.
Инвестиционная привлекательность объекта
Покупка в ипотеку и перепродажа
Покупка в ипотеку, сдача в аренду и перепродажа
Накопительная доходность
Накопительная доходность
Покупка в ипотеку и перепродажа
Банковский вклад
Доходность рассчитана на основе информации о сданных домах и носит ориентировочный характер
Рассчитать доходность
Похожие квартиры
Визуализация и планировка, в том числе в части площади и размера стен жилого помещения, являются проектными и могут быть изменены в ходе строительства объекта. Цена квартиры зависит от выбранной программы и акции, актуальные цены можно уточнить у менеджеров и на момент заключения договора.
Закрыть
ул. Рябиновая ул. Габдуллы Тукая Школа Детский сад ПК 3-1 ПК 3-2 ПК 3-3 ПК 3-4 ПК 2-1 ПК 1-1 ПК 2-2 ПК 1-3 ПК 4-1 ПК 4-2 Дорожная Детский сад г. Казань 16К-1917 16К-1917 Аэропорт с. Усады с. Столбище
+7 (843) 295-77-77 Ак Барс Дом проспект Победы 151а <br> г. Казань, 420025