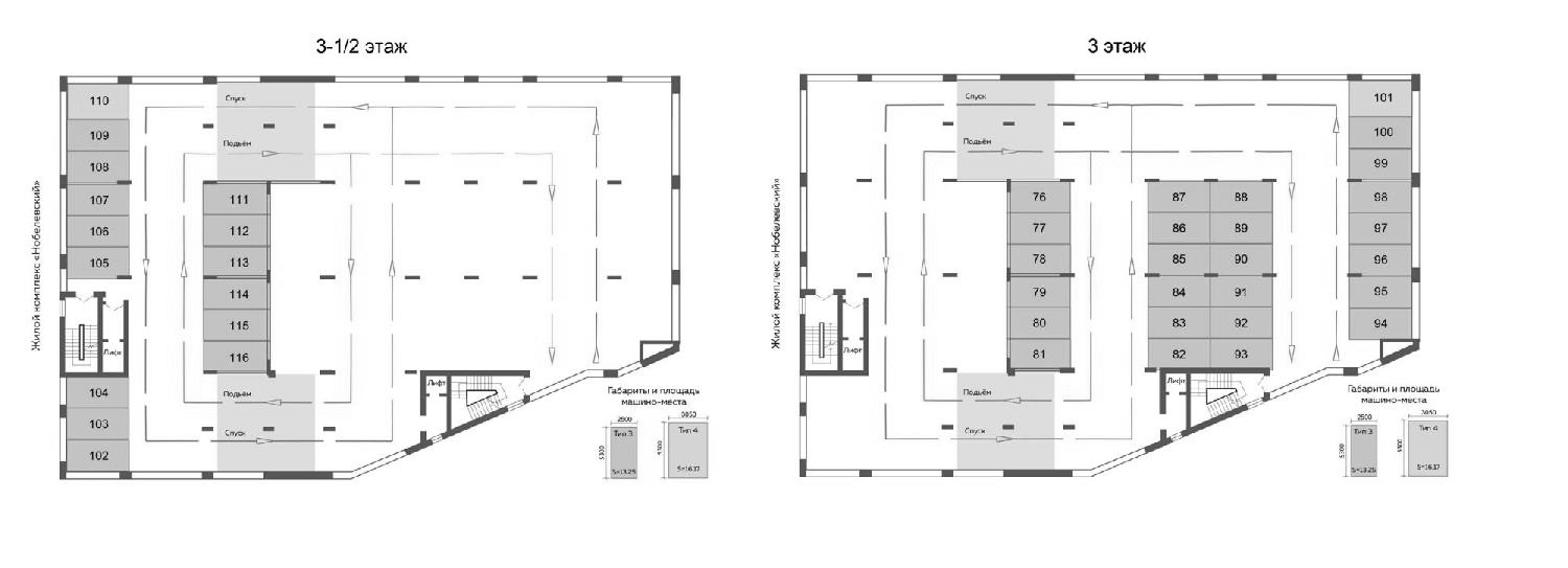
Парковочное место №108

ул. Николая Ершова 65

1 960 000 руб.

Общая площадь: 13.25 м²
Срок сдачи: Парковка сдана
Этаж: 3 /9
Предложение
Получите персональное предложение на покупку квартиры
Получить предложение
+7 (843) 295-77-77 Ак Барс Дом проспект Победы 151а <br> г. Казань, 420025