420025, г. Казань, проспект Победы 151а
Режим работы офиса:
Пн-Пт: с 09:00 до 20:00
Сб: с 09:00 до 16:00
Вс: с 10:00 до 16:00
9 мая: - выходной
10 и 11 мая: - с 10:00 до 16:00
Эл. почта для сотрудничества:
info@abdev.ru
Эл. почта для обращений:
info-ABN@abdev.ru
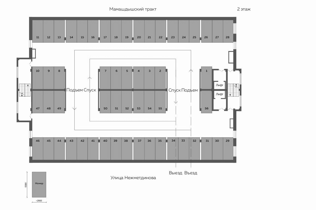
Мамадышский тракт ПК-5.2
2 120 000 руб.
Выберите консультанта для печати
Гизатуллина Анастасия
Консультант
+79063290535
Галятдинова Вилада
+79673617940
Верхолетова Ольга
+79377784836
Муслимова Миляуша
+79063290042
Тимеркаев Фарит
+79061157390
Габидуллин Ильшат
+79872998156
Без консультанта