Задать вопрос
Обращение в АБД
Позвонить
Написать в чат

Выбрать по параметрам
Вернуться к генплану

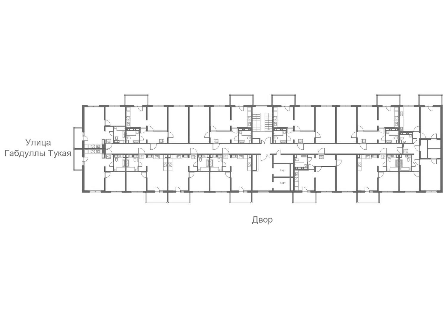
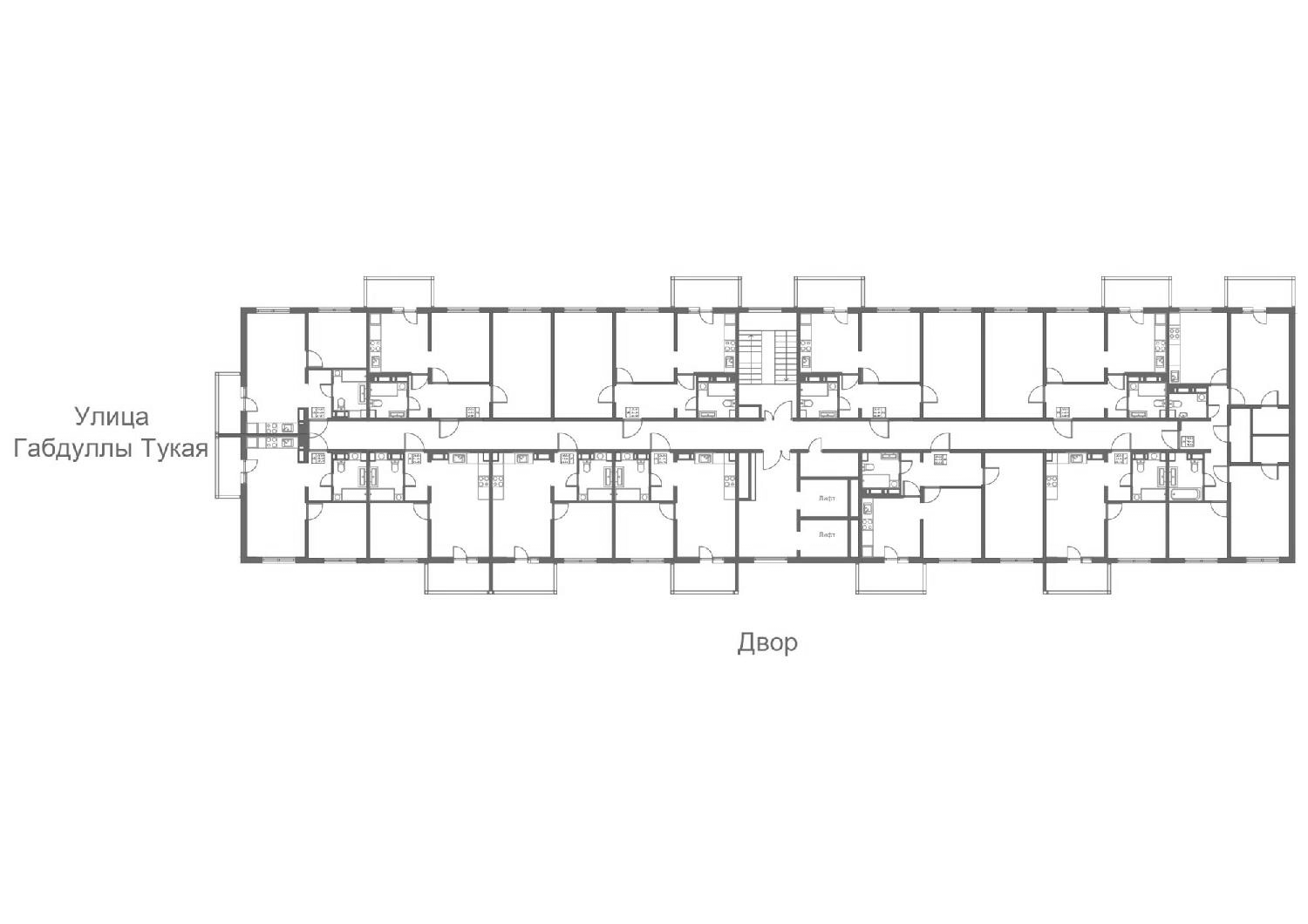
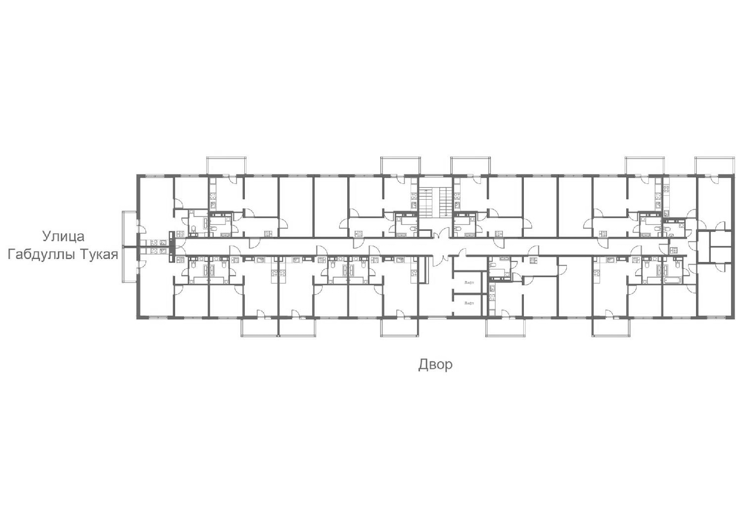
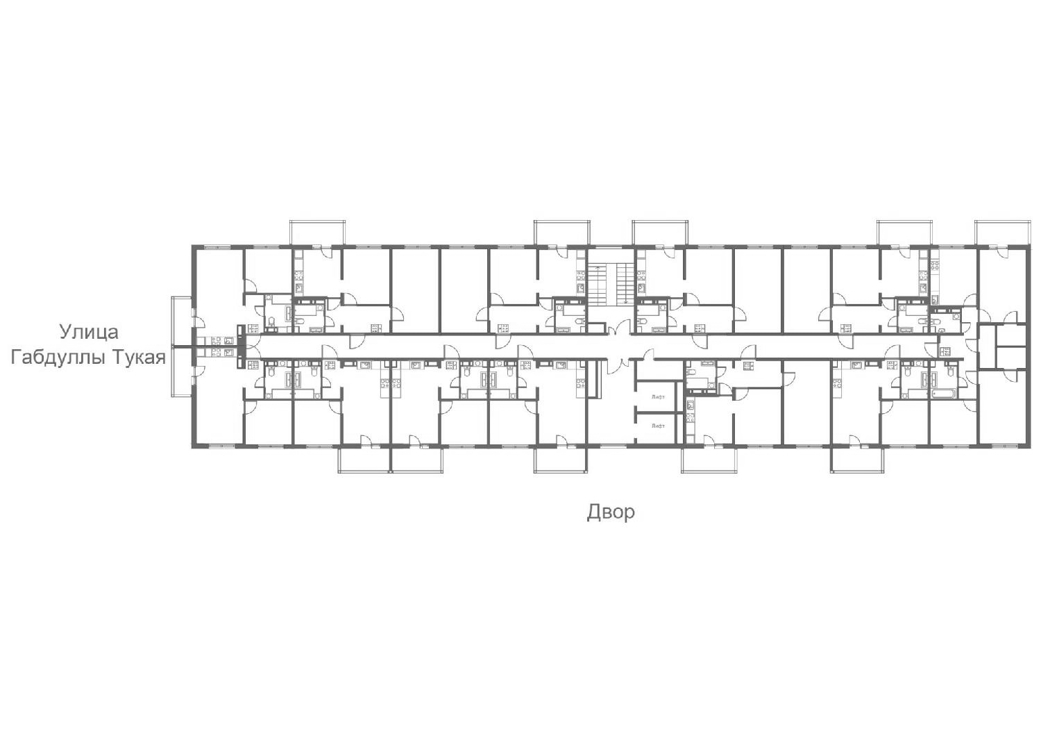
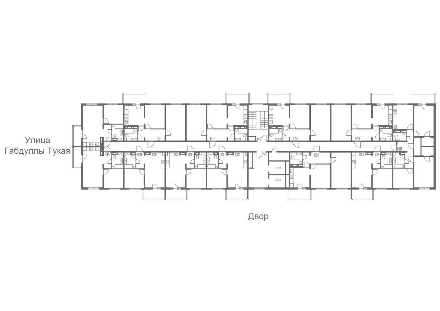
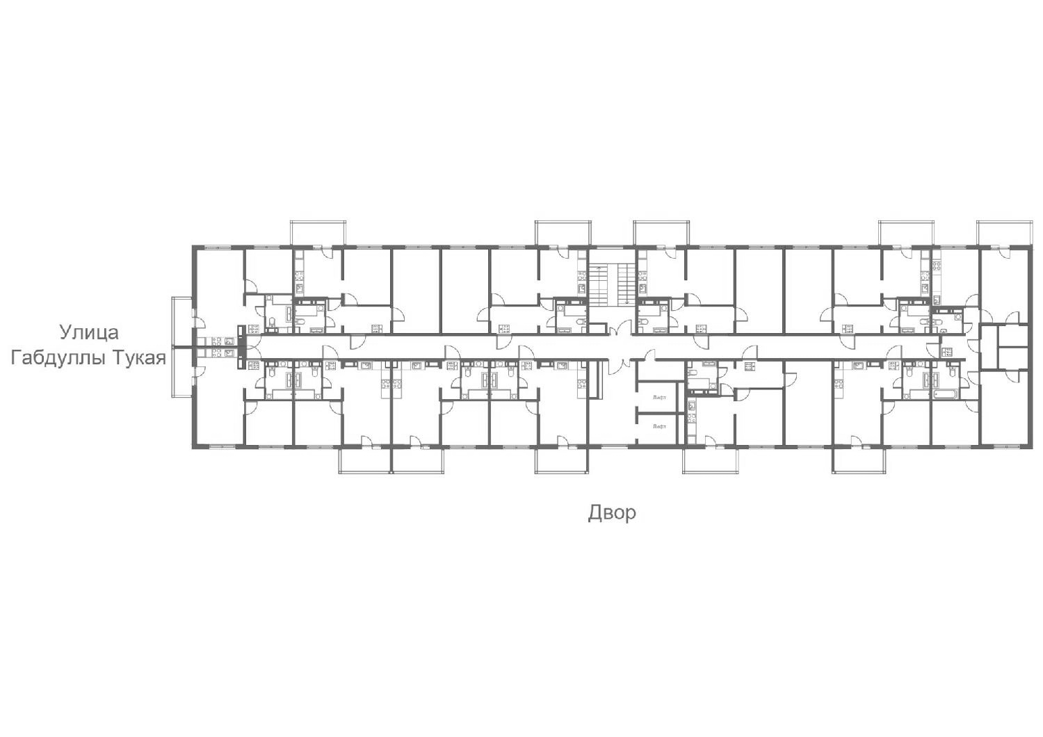
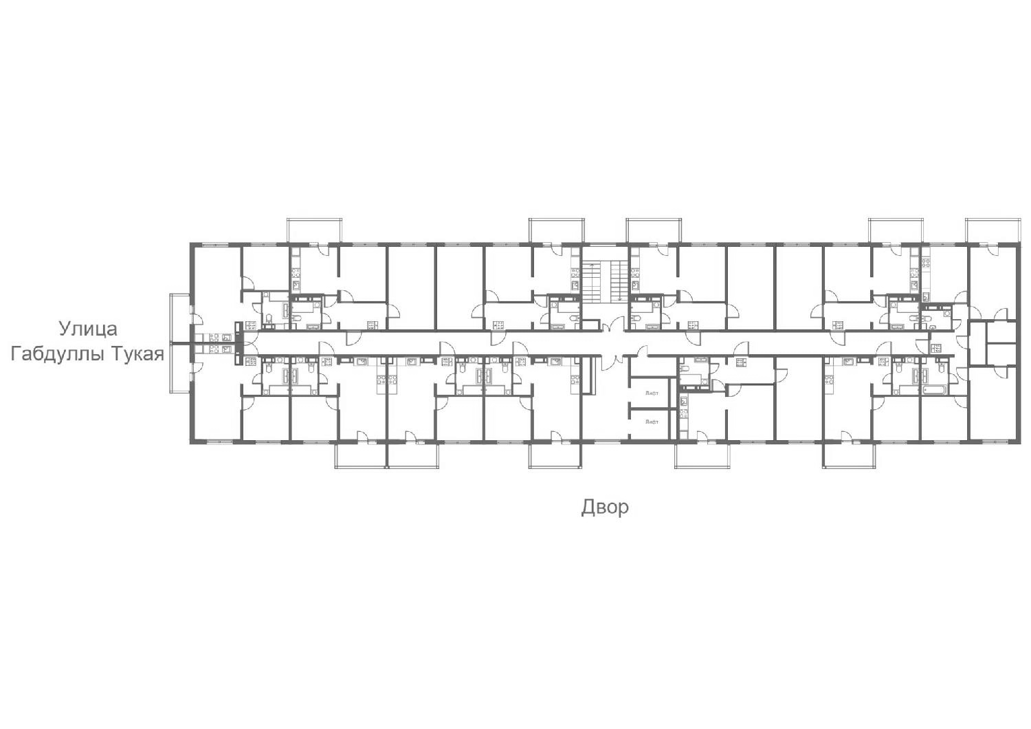
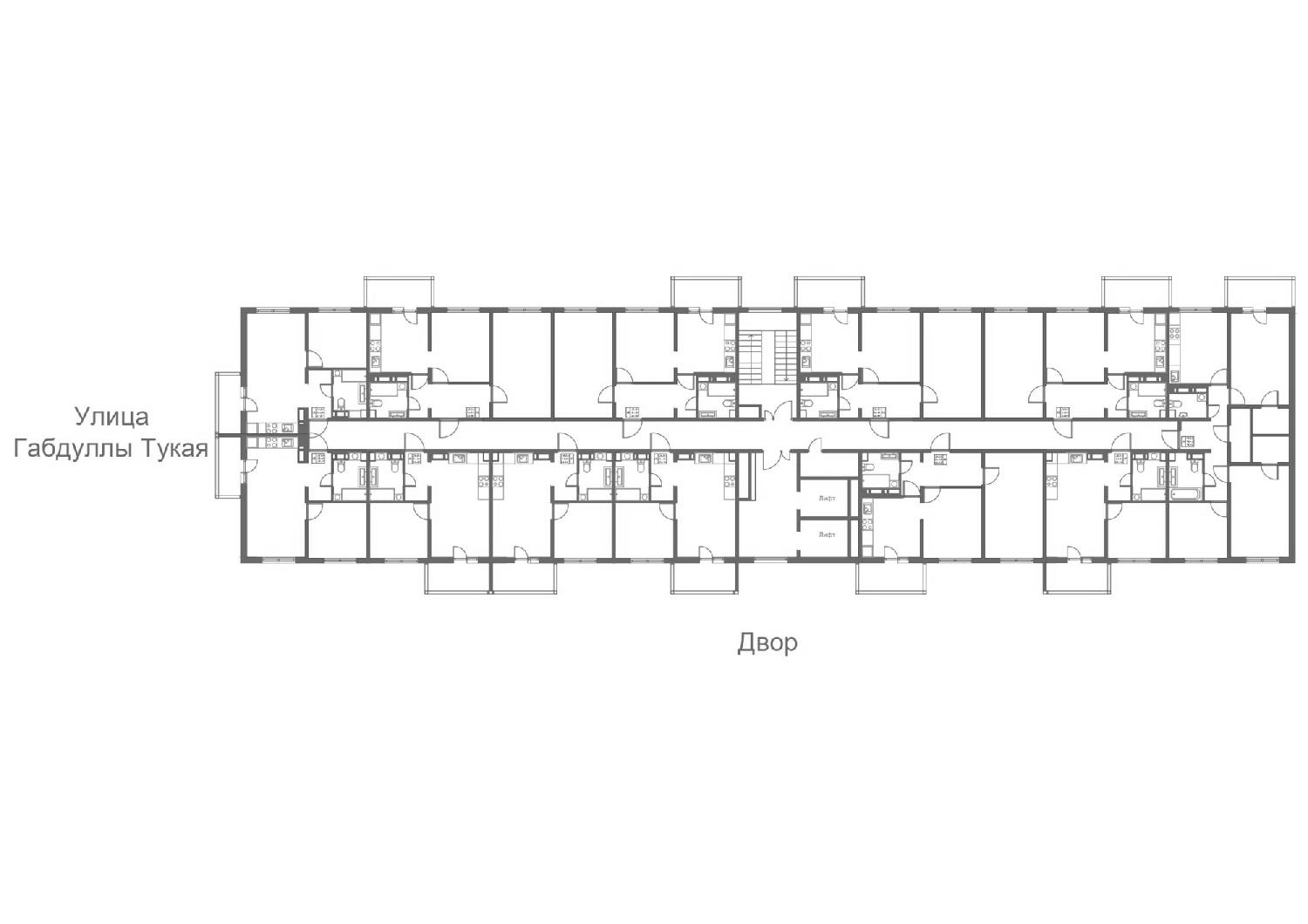
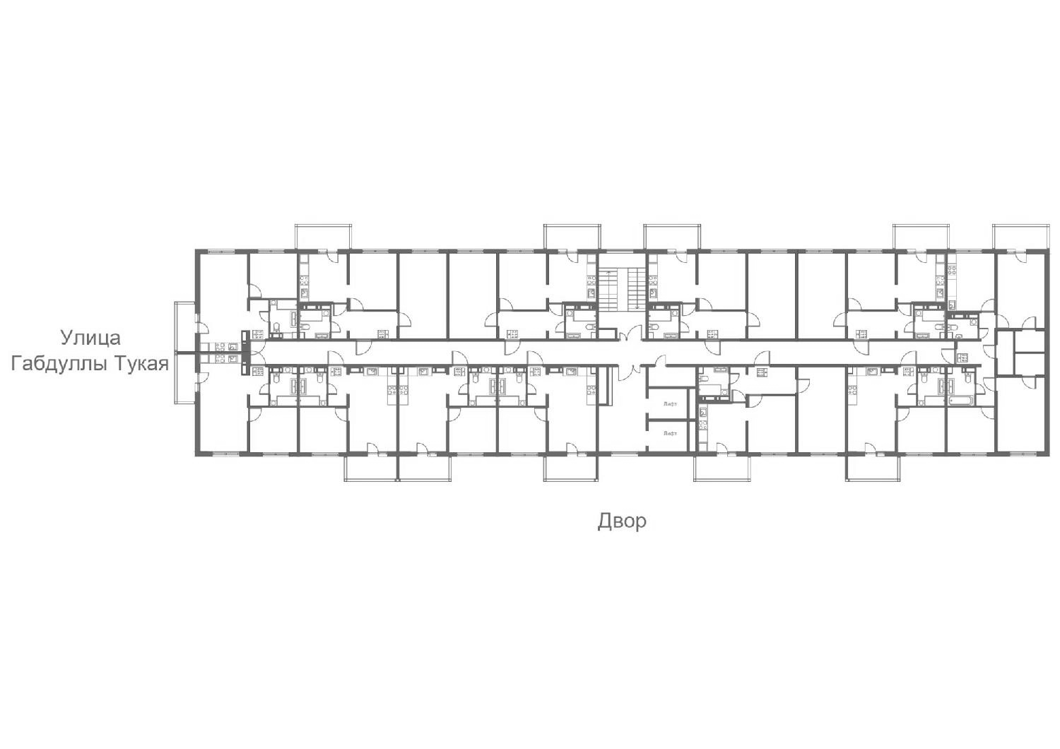
Квартиры в доме ПК 4-1 по ул. Габдуллы Тукая 1 в ЖК «Дома у сада»

Дома у сада / Габдуллы Тукая 1
ул. Рябиновая ул. Габдуллы Тукая Школа Детский сад ПК 3-1 ПК 3-2 ПК 3-3 ПК 3-4 ПК 2-1 ПК 1-1 ПК 2-2 ПК 1-3 ПК 4-1 ПК 4-2 Дорожная Детский сад г. Казань 16К-1917 16К-1917 Аэропорт с. Усады с. Столбище
Этаж
10
9
8
7
6
5
4
3
2
1
Этаж
1
10
9
8
7
6
5
4
3
2
1
Площадь
Комнаты
Статус
Свободна
Цена
ул. Рябиновая ул. Габдуллы Тукая Школа Детский сад ПК 3-1 ПК 3-2 ПК 3-3 ПК 3-4 ПК 2-1 ПК 1-1 ПК 2-2 ПК 1-3 ПК 4-1 ПК 4-2 Дорожная Детский сад г. Казань 16К-1917 16К-1917 Аэропорт с. Усады с. Столбище
+7 (843) 295-77-77 Ак Барс Дом проспект Победы 151а <br> г. Казань, 420025