Задать вопрос

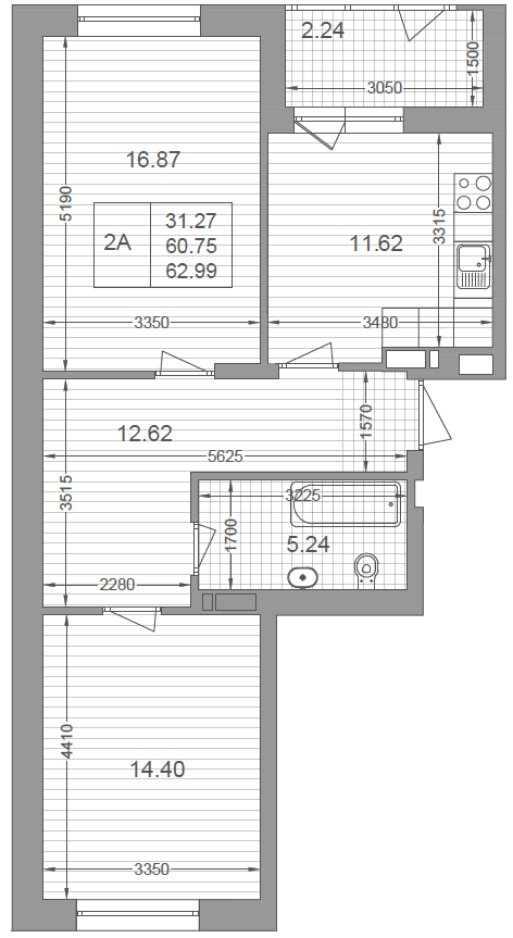
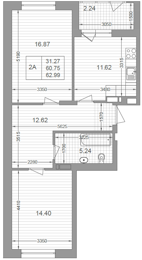
2-к квартира 62.6 м²

Мой Ритм / Петра Полушкина 1, кв.№ 30
14 711 000 руб.
-520 000 ₽
Площадь:
62.60 м²
Срок сдачи:
Дом сдан
Этаж:
8/17
Корпус:
ПК 10-1
Проконсультироваться
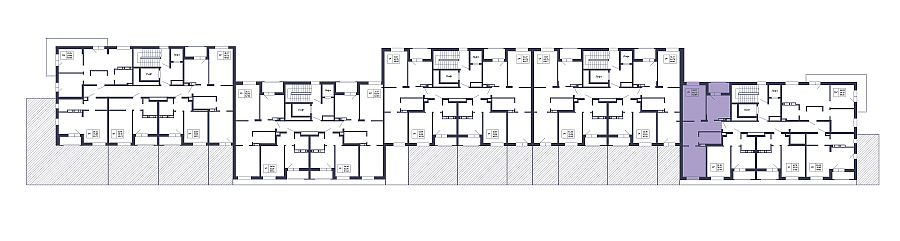
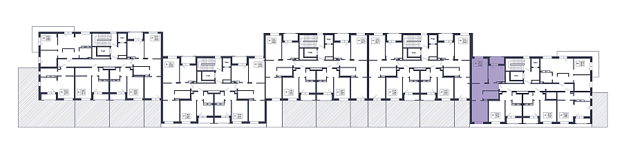
План
Этаж
Мопы
Архитектура
Благоустройство
Ген.план
Ипотека
Рассрочка
Типы ипотечных программ
Основные параметры
Выберите банк
Все банки
Все банки
Сбербанк
ВТБ
Ак Барс Банк
Дом РФ
Ставка
Первоначальный взнос
Срок кредита
Тип отделки
Расчет ипотеки
Ипотека
Рассрочка
Расчеты
Условия покупки
Предложений от банков нет!
К сожалению, предложений от банков нет. Попробуйте указать другие параметры ипотеки
Эта квартира продаётся без рассрочки, предложим вам другие интересные варианты?
Другие квартиры
Приведенные расчеты стоимости квартиры и параметров ипотеки носят предварительный характер. Окончательный расчет суммы кредита и размер ежемесячного платежа производятся банком после предоставления полного комплекта документов и проведения оценки платежеспособности клиента.
Похожие квартиры
Визуализация и планировка, в том числе в части площади и размера стен жилого помещения, являются проектными и могут быть изменены в ходе строительства объекта. Цена квартиры зависит от выбранной программы и акции, актуальные цены можно уточнить у менеджеров и на момент заключения договора.
Предложение
Получите персональное предложение на покупку квартиры
Получить предложение
Закрыть
Детский сад №187 ул. П. Полушкина проспект Победы ул. С. Ахтямова двор двор двор ПК 10-2 ПК 10-1 ПК 5-2 ПК 5-1 ПК 1-2 ПК 1-1 ПК 5-1 ПК 5-2 ПК 5-3 ПК-2 ПК-3 ПК-14 ПК-13 ПК-12 ПК-11 ПК-4 ПК-3 Игровой парк Бульвар проспект А. Камалеева Бульвар ул. Назиба Жиганова Ипподром ТЦ Мега Лицей №187 Детский сад №187 ПК-9
+7 (843) 295-77-77 Ак Барс Дом проспект Победы 151а <br> г. Казань, 420025